Home
About
Commercial
Residential
Photography
Visualization
Shop
Menu
Gabriella Lanaro
Home
About
Commercial
Residential
Photography
Visualization
Shop
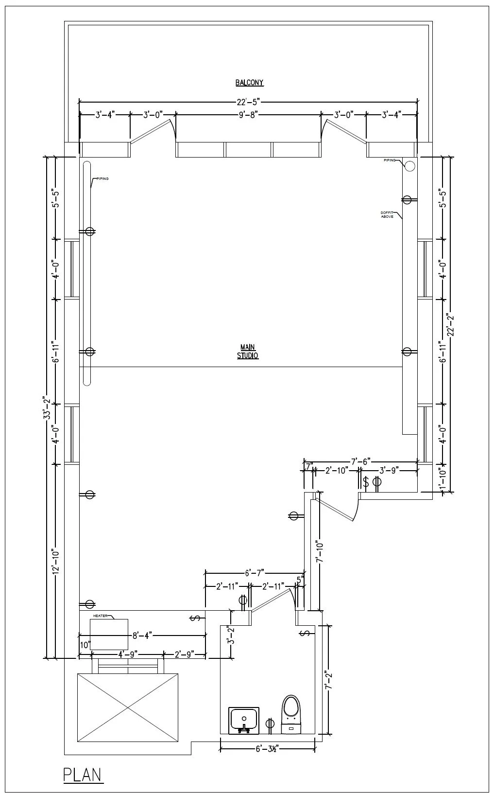
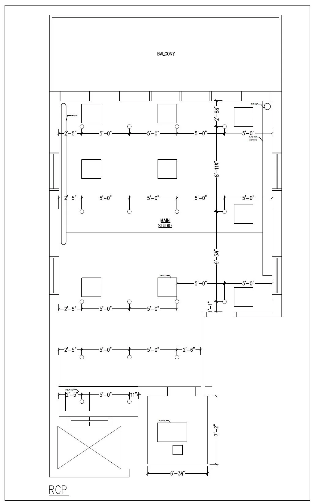
Gowanus Studio